• .All .Education .Social Sector .Adaptive Reuse .Houses .Competitions
  • .Practice .Contact
Localground
Work
.Social Sector
Previous Next
1/12
fullscreen previous slide next slide

Youth Empowerment Centre . Tingre Nagar

Client
Pune Municipal Corporation
Location
Tingre Nagar, Pune
Year
2021
Area
15,000 sf
Structural
Shreesh Consultants
Images
Manish Malli, Abhishek Chavhan
Team
Yogesh Kurhade,Viraj Kapadia, Gaurav Sharma, Khushru Irani

Drawings

Location Plan
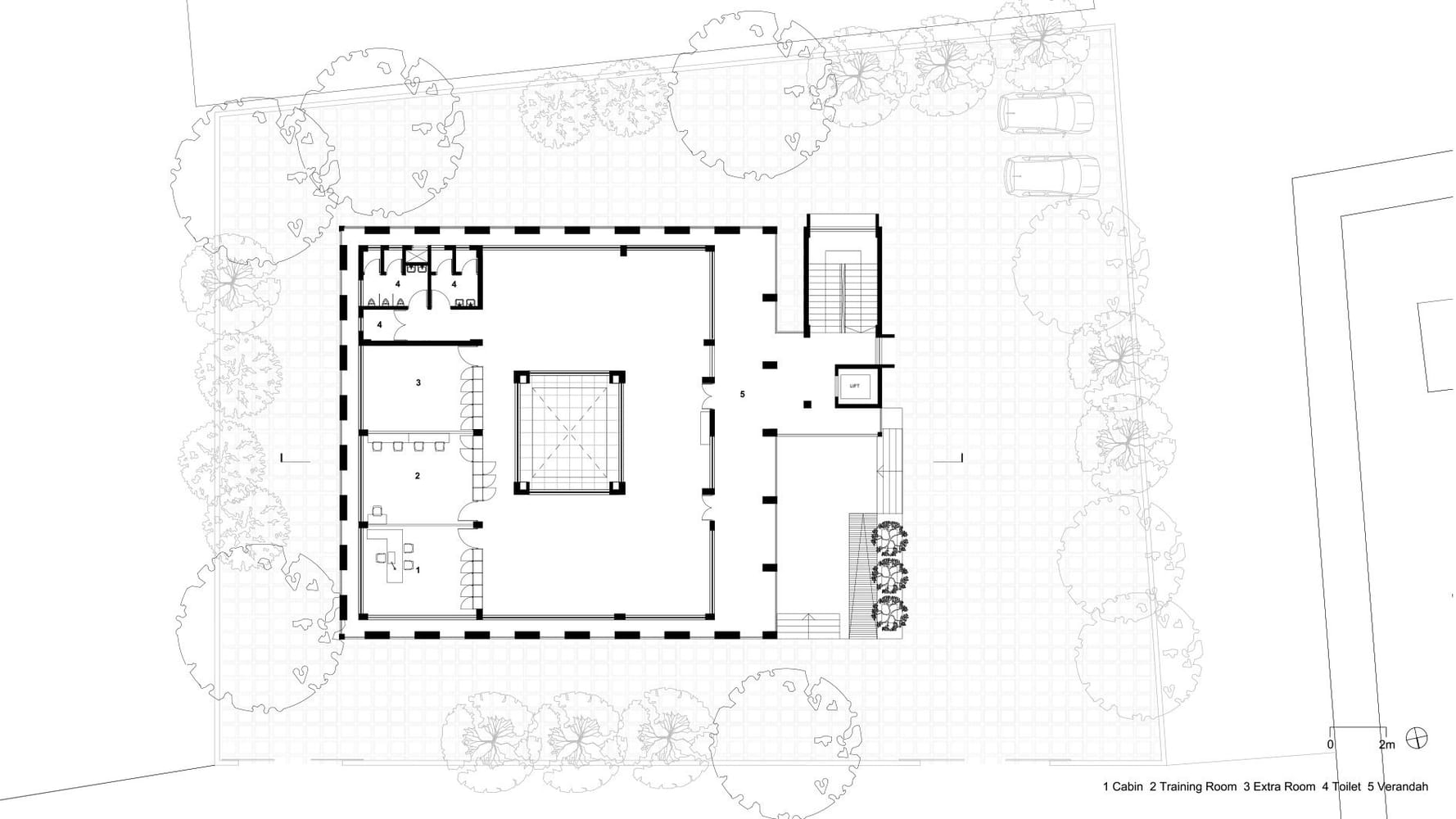
Ground Floor Plan
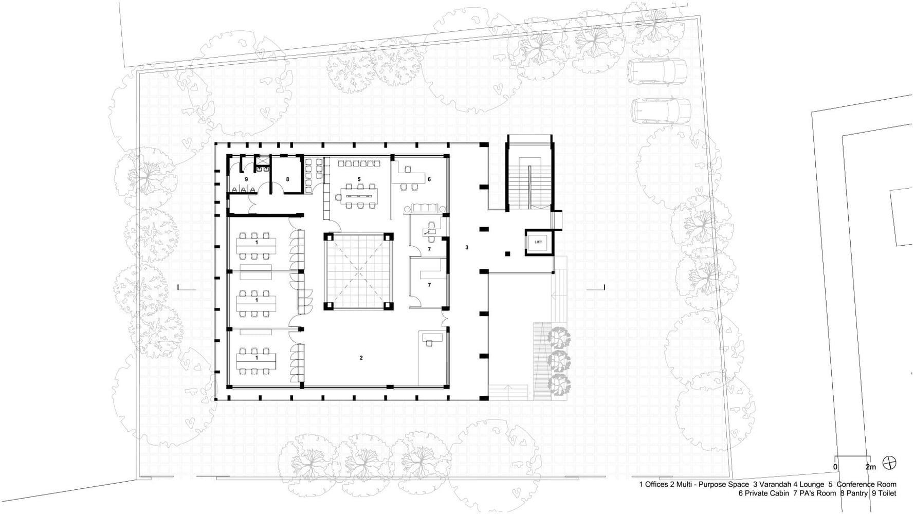
First Floor Plan
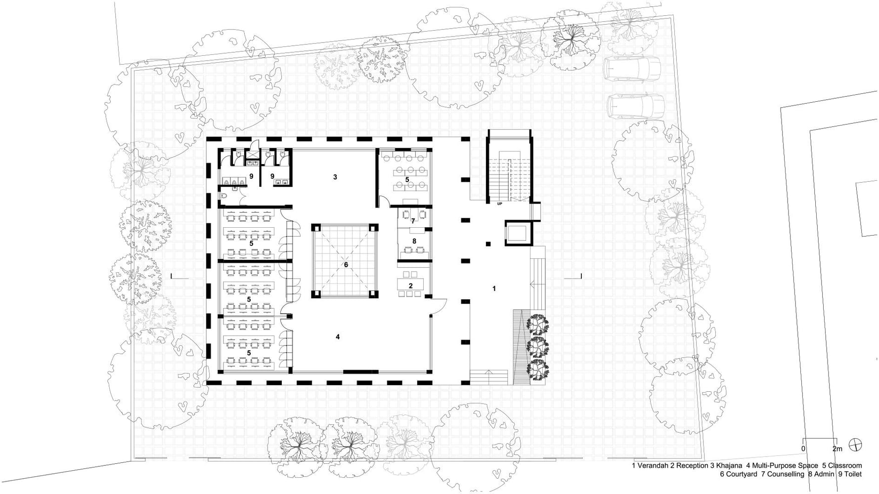
Second Floor Plan
Section

Development

Initial Concept 1
Initial Concept 1
Initial Concept 2
Localground